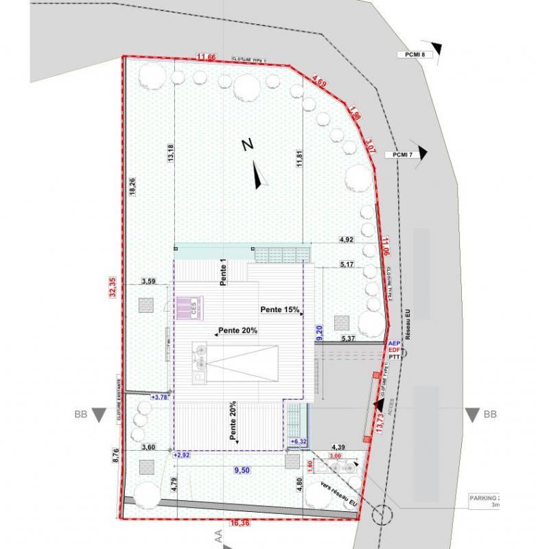
Belle parcelle de 543 m2 sur la belle commune de l’Entre Deux (Villa MAINA – Prêt à Vivre – PP – SHOB 81 m²)
Critères du
terrain à bâtir
Pour obtenir un devis gratuit
Demander mon devisBelle parcelle de 543 m2 sur la belle commune de l’Entre Deux (Villa MAINA – Prêt à Vivre – PP – SHOB 81 m²)
Réalisez votre projet immobilier sur la commune de l’Entre-Deux en construisant cette belle villa de plain pied de 81 m Shob
Composée de 2 chambres, 1 belle suite parentale, 2 SDB et 1 varangue confortable
Demandez une étude gratuite et personnalisée de votre projet de construction !
Terrain sélectionné auprès de nos partenaires fonciers, selon disponibilité, pour la construction d’une maison neuve. Non mandaté pour réaliser la vente (loi du 2 janvier 1970 n°70-9).
Visuels non contractuels.
Conditions Générales
Les prestations mentionnées dans les annonces sont exécutées dans le cadre d’un contrat de marché de travaux.
– La fourniture et l’installation des menuiseries extérieures sont confiées à un prestataire externe spécialisé.
– De même, la fourniture et l’installation du ballon solaire sont réalisées par un prestataire qualifié.
En outre, nous mettons nos clients en relation avec des prestataires externes pour l’élaboration et la conception de plans personnalisés.
Les devis sont établis en tenant compte de ces conditions, et les travaux seront effectués conformément aux normes en vigueur.
Toute demande particulière ou modification fera l’objet d’un devis supplémentaire.
Offres de terrains similaires
qui pourraient vous séduire
Le cirque de SALAZIE n attend plus que votre famille . Devenez propriétaire de cette magnifique villa
La villa MANGO n attend plus que vous ... Sautez le pas et devenez propriétaire
Belle parcelle viabilisée à Sainte Marie (Villa ALIZEE - PAF - ETAGE - SHOB 100 m²)
Magnifique Villa CELESTE - Option Prêt à Vivre - ETAGE - SHOB 173 m² sur belle parcelle de 505 m2 à Trois Mares(Tampon)
Réalisez cette belle Villa CANELLE - Option Prêt à Vivre - ETAGE - SHOB 126 m² sur cette jolie parcelle de 336 m2 à la RAVINE DES CABRIS
Installez-vous dans cette belle Villa DAPHNE - Option Prêt à Vivre - ETAGE - SHOB 125 m² sur cette jolie parcelle de 458m2 située Ravine à malheur-Possession-avec vue mer
Devenez propriétaire de votre rève. La Maison CANNELLE vous ouvre ses portes
Sur la commune de Saint Denis secteur Saint Francois, MAGNIFIQUE parcelle de 864 m² vue mer sans vis à vis
Aménagez dans cette belle Villa COMBAVA - option Prêt à Vivre - ETAGE - SHOB 109 m² sur une jolie parcelle de 300 m2 dans le quartier charmant de Bellevue- Chemin Pièce Jeanne Saint Louis Vue mer
Construisez cette magnifique Villa CANELLE - ETAGE - SHOB 126 m² sur cette jolie parcelle de 300 m2 située dans le quartier charmant de Bellevue Chemin Pièce Jeanne Saint Louis Vue mer
Installez vous dans le Sud en réalisant cette belle Villa ALIZEE - Option Prêt à Vivre - Etage - SHOB 100 m² sur les derniers lots disponibles sur GRAND BOIS -
Aménagez dans cette magnique Villa CARAMBOLE - Option PAV- ETAGE - SHOB 129 m² sur une belle Parcelle de 383m2 située à ST LEU chemin Piton CD13
Réalisez cette belle Villa PONSETTIA - Option Prêt à vivre - ETAGE - SHOB 120 m² sur les derniers lots disponibles sur GRAND BOIS - Lot 6
Installez-vous dans cette belle villa moderne DAPHNE- SHOB 125 m² Jolie parcelle de 300 m2 quartier Bellevue Chemin Pièce Jeanne Saint Louis Vue mer
Devenez propriétaire de ce joli T2 avec varangue sur STE SUZANNE
La villa Ponsettia est faite pour vous. Dernière opportunité
Construisez cette magnifique Villa NOVA sur cette belle parcelle de terrain constructible de 514 m² située dans le secteur de Bas de Jean-Petit, à quelques minutes du centre-ville de Saint-Joseph
Batissez cette belle Villa DAPHNE -Option Prêt à Vivre - ETAGE - SHOB 125 m² sur une parcelle A SAISIR de 540 m2 très bien situé à Piton St Leu
Installez vous dans cette belle Villa PASSION - option Prêt à Vivre - Etage - surface de 125 m²SHOB-TERRAIN SAINT LOUIS 247 M2 dans un lotissement sécurisé, viabilisé et clôturé en partie
Installez vous dans cette magnifique Villa EDWINA - Option Prêt à Vivre - ETAGE - SHOB 119 m² Dernier lot sur GRAND BOIS - Lot 6
Aménagez dans cette belle villa Canelle de 80 m2 sur une parcelle située à La Plaine St Paul
Rare Saint ANDRE Centre Belle Parcelle viabilisée (Villa PASSION - PAF - Etage - SHOB 125 m²)
Aménagez dans l'Ouest en réalisant cette magnifique Villa CARAMBOLE - Option Prêt à Vivre - ETAGE - SHOB 139 m² sur une belle parcelle de 458m2 située Ravine à malheur avec vue mer
Installez-vous dans cette superbe Villa CELESTE - Option Prêt à Vivre - ETAGE - SHOB 173 m² sur la dernière parcelle de 253m2 en hypercentre ! Proche de toutes commodités et accès routiers
Aménagez sur Saint Leu en réalisant cette jolie villa Passion-Option PAV-etage-125m2 Shob Terrain de 540 m2 très bien situé à Piton St Leu